
Ein modernes, mehrstöckiges Gebäude aus Glas und Stein steht an einer belebten Straßenkreuzung, umgeben von geparkten Autos und angrenzenden Gebäuden unter einem klaren Himmel.

Architektonisches Diagramm mit isometrischem Stapelmodell, grundlegender Aufteilung und Grundrissen für das Dach, die königliche Station und die VIP-Station; Funktionsbereiche sind gelb markiert.
images_phocagallery_referenzen_gesundheit_khc_khc_f_10

Es werden Grundrisse für drei Ebenen einer allgemeinen Station gezeigt, mit farblich gekennzeichneten Zonen für den Verkehr, die Behandlung und die Stationen sowie isometrischen Stapel- und Zonendiagrammen.
images_phocagallery_referenzen_gesundheit_khc_khc_f_05

Architektonischer Grundriss mit farblich gekennzeichneten Zonen für Verkehrs-, Übergangs- und Wohn-/Bildungsbereiche sowie isometrischen Stapel-, Zonen- und Orientierungsdiagrammen.
images_phocagallery_referenzen_gesundheit_khc_khc_f_04

Architektonischer Grundriss mit Raumaufteilung, gelben Zonen und einem isometrischen Stapelmodell für verschiedene Stockwerke, mit entsprechenden Legenden auf der linken Seite.
images_phocagallery_referenzen_gesundheit_khc_khc_f_03

Architektonischer Grundriss mit Raumaufteilung, Zoneneinteilung, isometrischer Stapelung für mehrere Stockwerke und Lageorientierung; einschließlich gekennzeichneter Bereiche und umliegender Außenflächen.
images_phocagallery_referenzen_gesundheit_khc_khc_f_02

Architektonischer Grundriss mit Raumaufteilung, farbkodierter Einteilung der Verkehrs-, Funktions- und Eingangs-/Ausgangsbereiche, mit isometrischen Stapel- und Orientierungsdiagrammen auf der linken Seite.
images_phocagallery_referenzen_gesundheit_khc_khc_f_01

Architektonischer Grundriss mit Zonenschlüssel und isometrischem Stapelmodell, in dem Verkehrs-, Funktions- und Eingangsbereiche auf einem Gebäudegrundriss mit Standortkontext gelb hervorgehoben sind.
images_phocagallery_referenzen_gesundheit_khc_khc_f_00

Eine Reihe von architektonischen Diagrammen für das Kilani Health Care Institute, die die Planungsphasen, die Volumenverarbeitung, die Erschließung, die strukturelle Anordnung, das Rettungskonzept und die Aufzugszuweisung zeigen.
images_phocagallery_referenzen_gesundheit_khc_khc_dd

Grundrissdiagramm mit Parkplätzen, gelb hervorgehobenen Verkehrsflächen, grundlegender Zonierung, isometrischem Stapelmodell und Details zur Gebäudeausrichtung auf der linken Seite.
images_phocagallery_referenzen_gesundheit_khc_khc_b_03

Architektonischer Grundriss einer Tiefgarage mit Parkzonen, Verkehrsflächen und einem Diagramm des Stapelmodells auf der linken Seite. Die Farbkodierung zeigt die verschiedenen Funktionsbereiche an.
images_phocagallery_referenzen_gesundheit_khc_khc_b_02

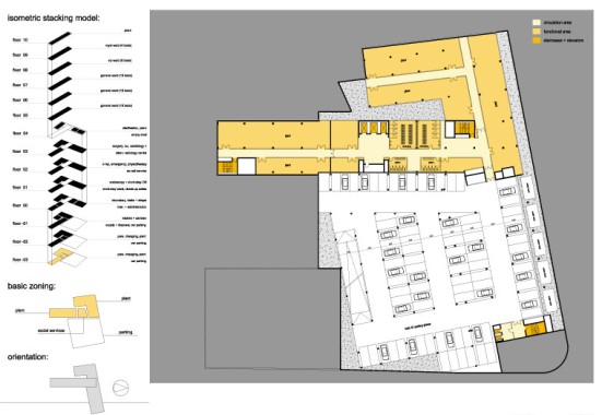
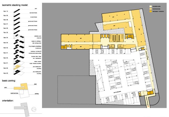
Architektonischer Grundriss mit einem Parkhauslayout, Funktionszonen in Gelb und beschrifteten isometrischen Stapeldiagrammen und Zonendetails auf der linken Seite.
images_phocagallery_referenzen_gesundheit_khc_khc_b_01

Architektonische Schnittzeichnung, die ein mehrstöckiges Gebäude mit unterirdischen Parkebenen, mehreren oberirdischen Stockwerken und einigen Innenelementen, wie Autos und Bäumen, zeigt.
images_phocagallery_referenzen_gesundheit_khc_khc_04

Architektonische Schnittzeichnung eines mehrstöckigen Gebäudes mit Tiefgaragenebenen, oberirdischen Stockwerken, Fahrzeugen, Bäumen und Aufzügen.
images_phocagallery_referenzen_gesundheit_khc_khc_03

Architektonische Ansichtszeichnung, die drei nebeneinander liegende Gebäude unterschiedlicher Höhe und Fassadengestaltung vor einem schlichten Hintergrund mit einem kleinen Bauwerk unterhalb des Erdgeschosses zeigt.
images_phocagallery_referenzen_gesundheit_khc_khc_02

Architektonische Schnittzeichnung eines mehrstöckigen Gebäudekomplexes mit Parkebenen, Innenräumen, Autos, Bäumen und Höhenmarkierungen.
images_phocagallery_referenzen_gesundheit_khc_khc_01

Ein modernes mehrstöckiges Gebäude mit Glasfassaden und beigen Steinelementen, mit kantigen Linien und einem Flachdach, auf einem gepflasterten Grundstück gelegen.

Ein modernes mehrstöckiges Gebäude mit einer Fassade aus Glas und Stein vor einem strahlend blauen Himmel, mit einer minimalen Landschaftsgestaltung im Vordergrund.

Modernes mehrstöckiges Gebäude mit Glas- und Steinfassade, kantigen Linien und großen Fenstern vor einem klaren blauen Himmel.

Modernes, mehrstöckiges Gebäude mit einem Sockel aus beigem Stein und oberen Stockwerken aus dunklem Glas, gelegen an einer abschüssigen Straße mit zwei geparkten Autos und etwas Grün.

03-khci-03